クイズ・なぞなぞ投稿広場

なぞなぞ・クイズ > 投稿広場 >

みんなの投稿

出来そうで出来ない三つ折り

投稿日: 2016/01/29(Fri) 07:19
投稿者: 特名

問題長方形で10p×16pの紙があります。短辺側(10p)を正確に

三等分して、しるしを2カ所つけてください。

ものさし・三角定規・コンパス・えんぴつ・電卓、自由に使ってよし。

だだし、投げたり 他人にあげたりとかはなし。


解答する


みんなの解答

投稿日: 2016/01/30(Sat) 03:17
投稿者: 特名

セブンさん 大正解です。

もう一つの解答案です。
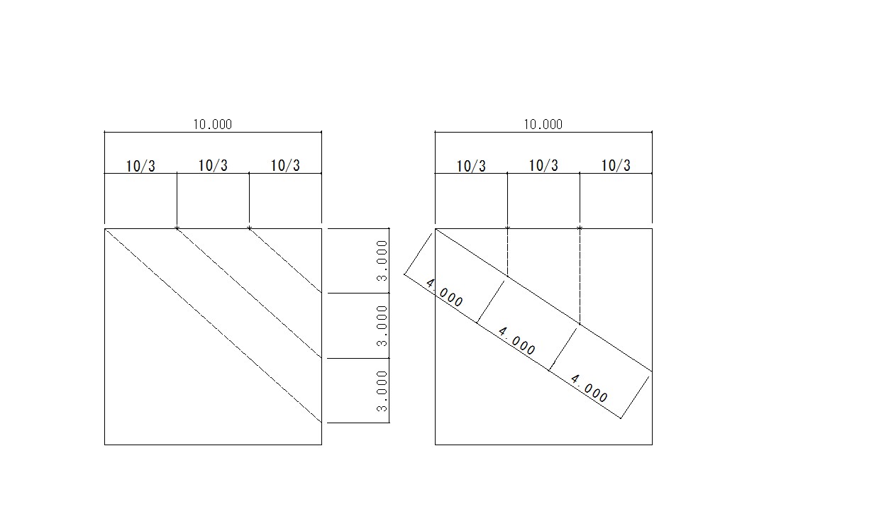
直接ものさしを使って、短辺の角に0を合わせる。
向かえの長辺上(16pの辺)に12pなるようにものさしを斜めに置く。
@4p、8pにしるしをつける。
A長辺と平行なるように三角定規を使って、しるしの上に2本線をひく。(紙を折ってよい)
B短辺に線〈折り目)の端 2カ所しるしをつける。
これで短辺を3等分できました。

特名くんの答え


投稿日: 2016/01/30(Sat) 02:32
投稿者: セブン

@、16cm側の辺に、ものさしで3cm、6cm、9cmを計り印をつける。
A、9cmの印から10cm側の辺の端に向けて斜めに線を引く。
B、3cm、6cmの印から、10cm側の辺Aで引いた線に平行になるように線を引く。
C、10cm側の辺に垂直になるように、ABで引いた線で紙を折る。
D、Cで付けた折り目10cm側の対辺に垂直になるようにCで付けた折り目に印をつける。

セブンくんの答え


ニックネーム

なりすまし防止機能

答え
※ここに書いた内容は隠れます。

答えの解説&コメント

暗証キー
※再編集する場合は必要です

スレッドを上げる

投稿広場トップ